欢迎来到江苏智通阀门控制有限公司 官方网站!江苏智通阀门控制有限公司是一家专注生产电动蝶阀,电动球阀,电动阀门,电动成套装置的制造商。
电动闸阀
发布日期:[2019-12-31] 点击率:![]() |
概述:
高中压法兰连接的闸阀适用于公称压力PN1.6~16.0Mpa,工作温度≤-29℃~550℃的石油、化工、水力、火力电站各种系统的管路上,切断或接通管路介质。适用介质为:水、油品、蒸汽、酸、碱、氨、尿素、含硫天然气等。
产品结构特点:
1:设计制造严格。产品结构合理,密封可靠、性能优良、造型美观
2:密封面堆焊Co基硬质合金,耐磨、抗擦伤性能好,使用寿命长
3:阀杆经调质及表面氮化处理,有良好的抗腐蚀及抗擦伤性
4:公称压力≥15.0MPa中腔采用自紧密封式结构,密封性能随压力升高而增加,保证了密封性能
5:阀门设有倒密封结构,密封可靠
6:零件材质及法兰、对焊端尺寸可根据实际工况或用户要求合理选配,满足各种工程需要
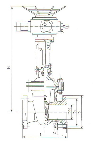
电装型号主要尺寸和规格:
法兰 连接形式 | DN | L | D | D1 | DN | H | b 法兰厚度 | Z-Φd | 电装型号 | 额定力矩 (N.M) | 电机功率 (KW) |
1.6MPa | |||||||||||
凸面法兰 RF Z940H Z940Y Z940W Z940F
Z941H Z941Y Z941W Z941F
16 16P 16R 16L | 40 | 240 | 145 | 110 | 85 | 595 | 16 | 4-Φ18 | Z10-24 | 100 | 0.25 |
50 | 250 | 160 | 125 | 100 | 653 | 16 | 4-Φ18 | Z10-24 | 100 | 0.25 | |
65 | 270 | 180 | 145 | 120 | 665 | 18 | 4-Φ18 | Z10-24 | 100 | 0.25 | |
80 | 280 | 195 | 160 | 135 | 725 | 20 | 8-Φ18 | Z15-24 | 150 | 0.37 | |
100 | 300 | 215 | 180 | 155 | 787 | 20 | 8-Φ18 | Z20-24 | 200 | 0.55 | |
125 | 325 | 245 | 210 | 185 | 934 | 22 | 8-Φ18 | Z20-24 | 200 | 0.55 | |
150 | 350 | 280 | 240 | 210 | 955 | 24 | 8-Φ23 | Z20-24 | 200 | 0.55 | |
200 | 400 | 335 | 295 | 265 | 1105 | 26 | 12-Φ23 | Z30-24 | 300 | 0.75 | |
250 | 450 | 405 | 335 | 320 | 1343 | 30 | 12-Φ25 | Z30-24 | 300 | 0.75 | |
300 | 500 | 460 | 410 | 375 | 1516 | 30 | 12-Φ25 | Z45-24 | 450 | 1.1 | |
350 | 550 | 520 | 470 | 435 | 1678 | 34 | 16-Φ25 | Z90-24 | 900 | 2.2 | |
400 | 600 | 580 | 525 | 485 | 1849 | 36 | 16-Φ30 | Z120-24 | 1200 | 3 | |
450 | 650 | 640 | 585 | 545 | 1937 | 40 | 20-Φ30 | Z120-24 | 1200 | 3 | |
500 | 700 | 705 | 650 | 608 | 2235 | 44 | 20-Φ34 | Z180-24 | 1800 | 4 | |
600 | 800 | 840 | 770 | 718 | 2432 | 48 | 20-Φ41 | Z250-24 | 2500 | 5.5 | |
700 | 900 | 910 | 840 | 788 | 2489 | 50 | 24-Φ41 | Z250-24 | 2500 | 5.5 | |
800 | 1000 | 1020 | 950 | 898 | 2643 | 52 | 24-Φ41 | Z350-18 | 3500 | 7.5 | |
900 | 1100 | 1120 | 1050 | 998 | 2935 | 54 | 28-Φ41 | Z500-18 | 5000 | 7.5 | |
1000 | 1200 | 1255 | 1170 | 1100 | 3410 | 56 | 28-Φ48 | Z500-18 | 5000 | 10 | |
